반응형
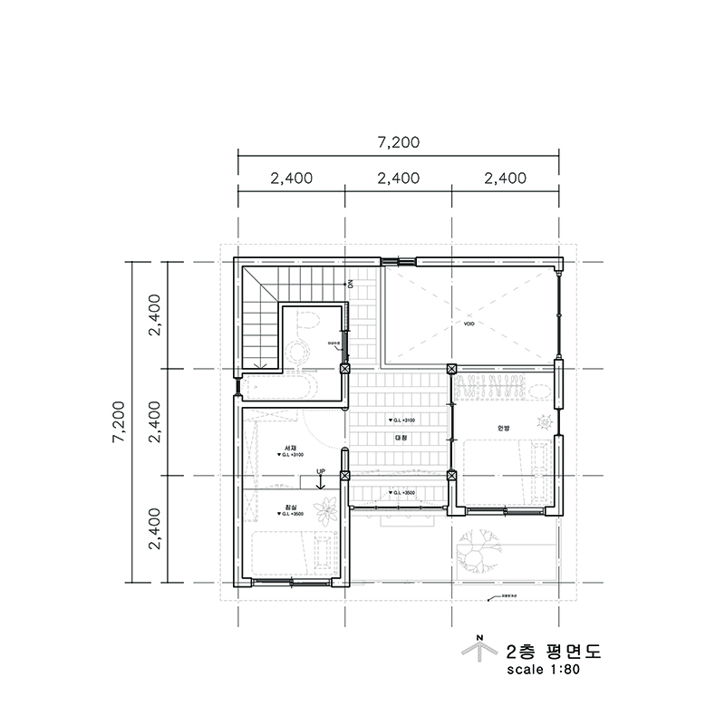
6X6 HOUSE 건축 공모전 (2013년) 작업 - 디자인, 설계도면(측면도, 평면도), 3D 렌더링
66제곱미터에서 100제곱미터까지 실용적이며 아름다운 집, 모듈러 방식의 6X6HOUSE(디자인5원칙 X 한국형 현대 디자인)

설계도면(측면도, 평면도)




3D 렌더링


















반응형
'3D맥스 > 제작노트' 카테고리의 다른 글
| 월이(WALL-E) 3D 배경 모작(2014) (0) | 2025.03.03 |
|---|---|
| 픽사 월이(WALL-E) 3D 작업(2014) (0) | 2025.03.03 |
| 3D 로우 폴리곤 건물 모델링 작업 - 밀양역(3Dmax, 포토샵) (0) | 2025.03.03 |
| 3D 로우 폴리곤 건물 모델링 작업 - 여수엑스포역(3Dmax, 포토샵) (0) | 2025.03.03 |
| 3D 맥스에서 지형(강과 산) 모델링하기(촬영사진과 위성지도를 사용한 방법) (0) | 2023.09.13 |